佛山茶楼51论坛qmpm广州佛山,万花楼qm论坛,登录-栖凤楼论坛,2025小姐威客信息最新动态老哥稳全国茶楼

安徽天思建筑装饰-合肥工装公司
周一至周六(8:00-18:00)服务热线:

0551-65568226

全国24H服务热线:

18055117184(微信同号)

合肥工装公司-天思建筑装饰
高端办公室装修/ 设计
酒店宾馆装修/ 设计
教育机构装修/ 设计
医疗机构装修/ 设计
餐饮空间装修/设计
会所空间装修/设计
工厂厂房装修/ 设计
店面空间装修/ 设计
商业空间装修/ 设计
家装/ 设计
教育培训案例

合肥东方爱婴早教中心装修案例

来源:天思装饰 作者: 天思空间装饰
发布时间:2017-12-24 15:38:50 点击:

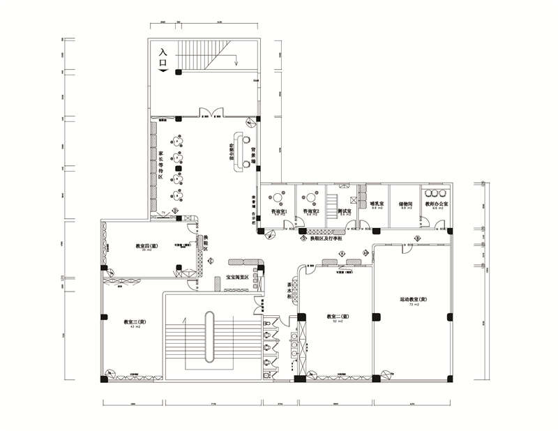
工程名称:合肥东方爱婴早教中心装修案例

装修类型:设计+施工

房屋面积:900平米

平面方案图:

效果图:
合肥东方爱婴早教中心装修

 

相关文章
  • 上一篇:返回列表
  • 下一篇:莫比思国际美语学校