佛山茶楼51论坛qmpm广州佛山,万花楼qm论坛,登录-栖凤楼论坛,2025小姐威客信息最新动态老哥稳全国茶楼

安徽天思建筑装饰-合肥工装公司
周一至周六(8:00-18:00)服务热线:

0551-65568226

全国24H服务热线:

18055117184(微信同号)

合肥工装公司-天思建筑装饰
高端办公室装修/ 设计
酒店宾馆装修/ 设计
教育机构装修/ 设计
医疗机构装修/ 设计
餐饮空间装修/设计
会所空间装修/设计
工厂厂房装修/ 设计
店面空间装修/ 设计
商业空间装修/ 设计
家装/ 设计
合肥精品酒店装修

长丰国际大酒店现代中式设计效果图

来源:天思装饰 作者: 合肥天思装饰
发布时间:2017-12-25 16:58:01 点击:

  项目名称:长丰国际大酒店现代中式设计

  设计面积:10000平方

  设计师:叶丹丹

  项目地址:长丰县水家湖长丰国际大厦

  设计简介:长丰国际大酒店,整体采用现代中式的装修风格,层次感分明,大厅采用中式浮雕作为背景墙设计,前台装饰画无不凸显悠久的中华文化。主题宾馆,采用各种不同的主题风格,紧贴浪漫主题风,让顾客尽情享受慵懒假期。酒店包间,简约的中式装修,在配饰的选择方面更为简洁,少了许多奢华的装饰,更加流畅地表达出传统文化中的精髓。为了给居室增添几分暖意,饰以精巧的灯具和雅致的挂画,使整个居室在浓浓古韵中渗透了几许现代气息。


长丰国际大酒店前台效果图

大厅休闲区
大厅休闲区设计

主题宾馆
长丰国际大酒店主题宾馆

主题宾馆
主题宾馆

主题宾馆
主题宾馆

主题宾馆
主题宾馆效果图

豪华套房
豪华套房设计图

豪华标准间
豪华标准间设计

电梯间
电梯间效果图

棋牌房
长丰国际大酒店棋牌房

连体包厢
连体包厢效果图

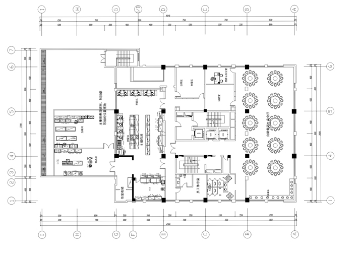
长丰国际大酒店六层餐厅平面布局图
长丰国际大酒店六层餐厅平面布局图
相关文章