佛山茶楼51论坛qmpm广州佛山,万花楼qm论坛,登录-栖凤楼论坛,2025小姐威客信息最新动态老哥稳全国茶楼
周一至周六(8:00-18:00)服务热线:
0551-65568226
全国24H服务热线:
18055117184(微信同号)
天思首页
公司简介
公司新闻
工装日记
工程案例
设计团队
施工团队
装修流程
联系我们
高端办公室装修
/ 设计
合肥办公室装修
合肥办公楼装修
酒店宾馆装修
/ 设计
合肥酒店装修
合肥宾馆装修
合肥民宿装修
教育机构装修
/ 设计
合肥幼儿园装修
合肥早教中心装修
合肥托幼园装修
合肥篮球馆装修
医疗机构装修
/ 设计
合肥医院装修
合肥诊所装修
合肥牙医诊所装修
合肥私人诊所装修
合肥整形医院装修
合肥药房装修
合肥中医馆装修
合肥养老院装修
餐饮空间装修
/设计
合肥餐饮店装修
合肥饭店装修
合肥火锅店装修
合肥咖啡馆装修
合肥蛋糕店装修
合肥茶楼装修
会所空间装修
/设计
合肥会所装修
合肥网咖装修
合肥KTV装修
合肥美容院装修
合肥影楼装修
合肥酒吧装修
工厂厂房装修
/ 设计
合肥厂房装修
合肥无尘车间装修
店面空间装修
/ 设计
合肥店面装修
合肥加盟店装修
合肥连锁店装修
合肥专卖店装修
合肥汽车美容店装修
合肥美发店装修
合肥服装店装修
合肥4s店装修
商业空间装修
/ 设计
合肥商场装修
合肥售楼部装修
合肥样板房装修
合肥展厅装修
家装
/ 设计
合肥别墅装修
餐厅装修
当前位置:
安徽天思建筑装饰
>
餐厅装修
淮南疯味肉蟹煲
来源:未知 作者: 天思空间管理
发布时间:2016-09-24 09:16:12 点击:次
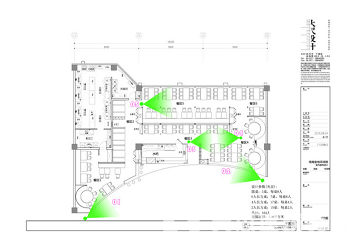
设计施工项目名称:淮南疯味肉蟹煲
面积:316平方
项目经理:梅均均
天思建筑装饰专业提供合肥餐饮店设计,餐饮店装修施工服务。质量有保障。
相关文章
上一篇:
四川香天下火锅旗舰店装修
下一篇:
番茄妹米线装修效果
合肥工装装修
:
合肥办公室设计
合肥办公楼装修
合肥酒店装修
合肥民宿装修
合肥医院装修
合肥整形医院装修
合肥养老院装修
合肥中医馆装修
合肥厂房装修
合肥车间装修
合肥展厅装修
合肥4s店装修
相关城市:
合肥工装
芜湖工装
马鞍山工装
铜陵工装
池州工装
淮南工装
滁州工装
阜阳工装
蚌埠工装
宿州工装
安庆工装
六安工装
宣城工装
黄山工装
亳州工装
淮北工装
巢湖工装
安徽办公室装修
:
合肥办公室设计
芜湖办公室装修
淮南办公室装修
六安办公室装修
安庆办公室装修
铜陵办公室装修
马鞍山办公室装修
滁州办公室装修
池州办公室装修
黄山办公室装修
宣城办公室装修
阜阳办公室装修
亳州办公室装修
蚌埠办公室装修
淮北办公室装修
宿州办公室装修
巢湖办公室装修
舒城办公室装修
友情链接:
泄爆门
广州弱电工程
超市货架
建材招商
温州装修公司
仿真树
集成灶加盟
抗倍特板厂家
装修管理系统
净水器加盟
幼儿园装修
圆柱模板
合肥工装设计公司
洛阳装修公司
清吧装修
小安派工
古建筑公司
广州尚层装饰
建材信息价
东莞办公室装修
合肥净化工程
全屋定制
空气过滤器
东莞展厅装修
展厅设计公司
杭州文物展柜厂家
广州装修公司
成都石英砂厂家
本网站使用帝国CMS
安徽天思建筑装饰设计工程有限公司
公司地址:合肥市望江西路万科名郡生活广场首座24层
联系电话:0551-65568226 / 18055117184
皖ICP备12009035号-1